Inwestycja znajduje się przy ul. Akcent 42 w Warszawie. To spokojna, ale jednocześnie doskonale skomunikowana okolica, oferująca wygodny dojazd do wielu punktów na mapie całego regionu. Niedaleko m.in. do stacji metra Młociny oraz przystanku autobusowego linii 110, kursującej do stacji metra Marymont. Lokalizacja, dzięki bliskości drogi ekspresowej S7, zapewnia również szybki wyjazd w kierunku lotniska Warszawa Modlin i Trójmiasta.
Akcent 42 będzie Twoim zielonym azylem, gdzie cisza i spokój łączą się z wygodą codziennego życia. Mieszkając tutaj, możesz korzystać z malowniczych terenów rekreacyjnych Puszczy Kampinoskiej, takich jak: Góra Ojca, Laskowa Góra, Polana Opaleń czy Kładka Motylowe Łąki – znajdują się one w odległości krótkiego spaceru. Blisko również cała infrastruktura miasta, m.in.: wiele przedszkoli i szkół, popularnych marketów, punktów usługowych i obiektów sportowych.
Akcent 42 to kameralne osiedle położone w spokojnej, willowej okolicy, obejmujące tylko 3 domy: dwa w zabudowie bliźniaczej i jeden dom wolnostojący. Starodrzew na działce oraz prosta, ponadczasowa bryła budynków, zaprojektowanych przez renomowaną pracownię Beczak Architekci, tworzą harmonijną przestrzeń do życia. Masz tutaj zapewnione maksymalne bezpieczeństwo i prywatność – teren inwestycji jest zamykany zdalnie sterowaną bramą, a przy furtce znajduje się wideodomofon, więc Twoje dzieci w spokoju mogą bawić się przed domem.
Każdy dom ma własny ogródek o powierzchni od 100 do 170 m², zapewniając Ci idealne miejsce na relaks w promieniach słońca i praktyczną przestrzeń do organizacji rodzinnych spotkań na świeżym powietrzu. Bliźniaki są połączone jednostanowiskowymi garażami, co zapewnia niezależność i intymność. Dodatkowe miejsce postojowe na podjeździe przed garażem sprawia, że nie będziesz mieć żadnych problemów z parkowaniem samochodów na terenie inwestycji.
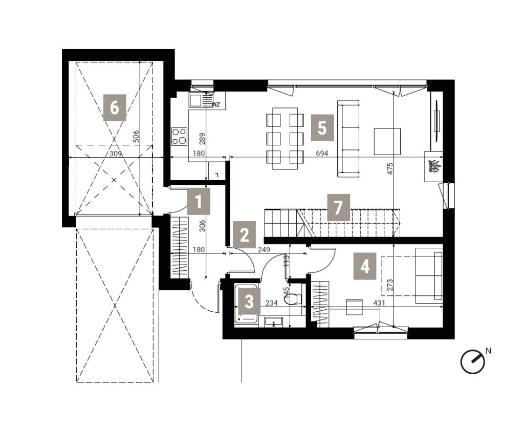
W inwestycji Akcent 42 czekają na Ciebie przestronne domy o powierzchni od 155 do 160 m². Parter to serce każdego z nich, gdzie znajdziesz wygodny, duży salon z kuchnią o powierzchni ponad 30 m², gabinet lub pokój gościnny z łazienką z prysznicem oraz przestronny wiatrołap z miejscem na szafę i przejściem do garażu. Duże okna zapewniają doskonałe doświetlenie wnętrz, a wysokie pomieszczenia (aż 2,86 m na parterze) wprowadzają niezwykłe poczucie przestrzeni.
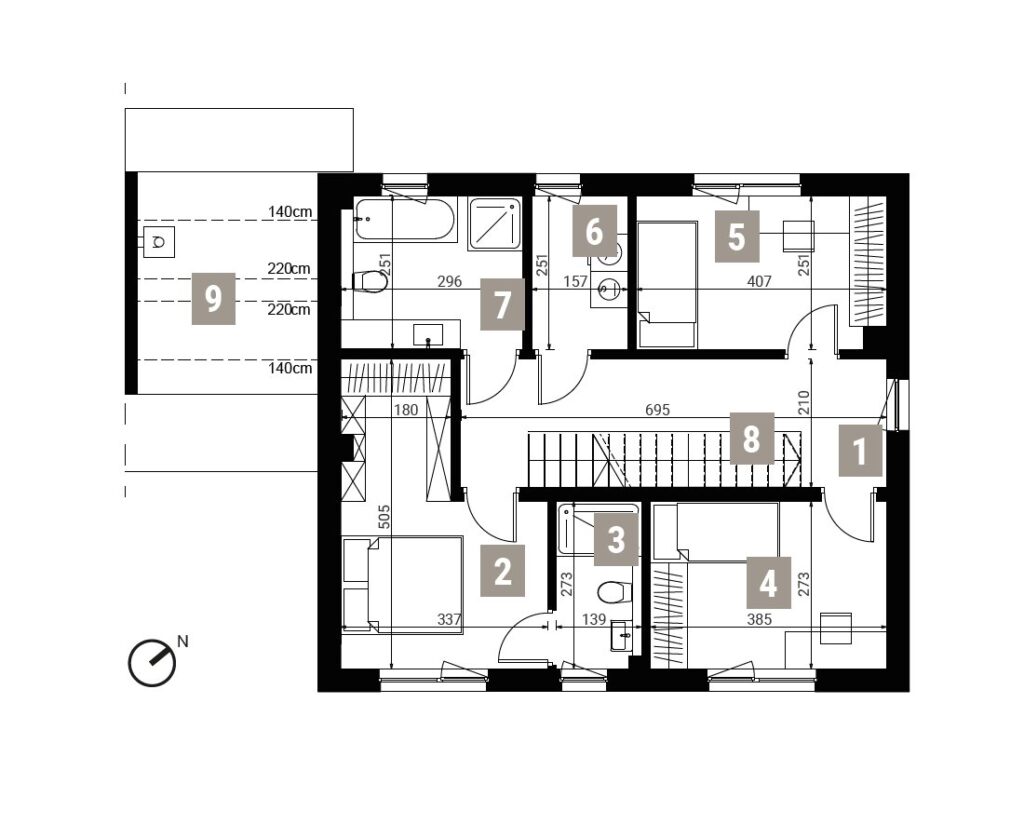
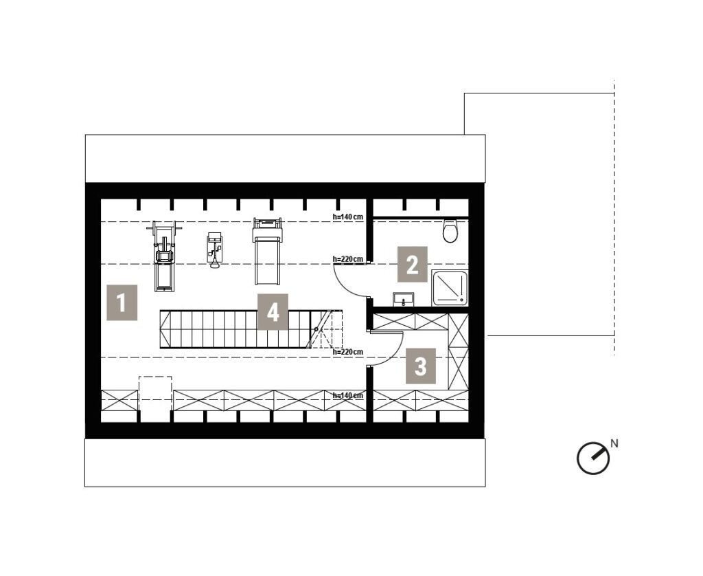
Na piętrze znajdują się trzy sypialnie, w tym jedna w stylu master bedroom z własną łazienką i garderobą, oraz pokój kąpielowy o powierzchni ponad 7 m². Dodatkowym atutem są poddasza: użytkowe, które można zaadaptować np. na domową siłownię i nieużytkowe (nad garażem), idealne jako dodatkowe miejsce do przechowywania. Dla jeszcze większej wygody, domy mają pralnię i suszarnię jako oddzielne pomieszczenie. Istnieje również możliwość dostosowaniu układu wnętrz do Twoich potrzeb oraz wykończenia ich w standardzie deweloperskim PLUS.
| Pomieszczenie | Powierzchnia | |
| 1 | Wiatrołap | 5.5 m2 |
| 2 | Korytarz | 2.8 m2 |
| 3 | WC | 3.4 m2 |
| 4 | Gabinet | 11.7 m2 |
| 5 | Salon z kuchnią | 34.6 m2 |
| 6 | Garaż | 15.6 m2 |
| Pomieszczenie | Powierzchnia | |
| 1 | Korytarz | 10.5 m2 |
| 2 | Sypialnia | 13.3 m2 |
| 3 | Łazienka | 3.7 m2 |
| 4 | Pokój 1 | 10.5 m2 |
| 5 | Pokój 2 | 10.1 m2 |
| 6 | Pralnia | 3.9 m2 |
| 7 | Łazienka 2 | 7.4 m2 |
| 8 | Schody | 4.0 m2 |
| 9 | Poddasze nieuż. | 4.2 m2 |
| Pomieszczenie | Powierzchnia | |
| 1 | Fitness | 19.6 m2 |
| 2 | Łazienka | 3.7 m2 |
| 3 | Garderoba/ Pom.gosp. | 3.6 m2 |
| 4 | Schody | 2.0 m2 |
| Pomieszczenie | Powierzchnia | |
| 1 | Wiatrołap | 5.5 m2 |
| 2 | Korytarz | 2.8 m2 |
| 3 | WC | 3.4 m2 |
| 4 | Gabinet | 11.7 m2 |
| 5 | Salon z kuchnią | 34.6 m2 |
| 6 | Garaż | 15.6 m2 |
| 7 | Schody | 2.0 m2 |
| Pomieszczenie | Powierzchnia | |
| 1 | Korytarz | 10.5 m2 |
| 2 | Sypialnia | 13.3 m2 |
| 3 | Łazienka | 3.7 m2 |
| 4 | Pokój 1 | 10.5 m2 |
| 5 | Pokój 2 | 10.1 m2 |
| 6 | Pralnia | 3.9 m2 |
| 7 | Łazienka 2 | 7.4 m2 |
| 8 | Schody | 4.0 m2 |
| 9 | Poddasze nieuż. | 4.2 m2 |
| Pomieszczenie | Powierzchnia | |
| 1 | Fitness | 19.6 m2 |
| 2 | Łazienka | 3.7 m2 |
| 3 | Garderoba/ Pom.gosp. | 3.6 m2 |
| 4 | Schody | 2.0 m2 |
| Pomieszczenie | Powierzchnia | |
| 1 | Wiatrołap | 3.9 m2 |
| 2 | Korytarz | 7.5 m2 |
| 3 | Salon z kuchnią | 32.0 m2 |
| 4 | Gabinet | 11.7 m2 |
| 5 | Kotłownia | 3.3 m2 |
| 6 | WC | 2.9 m2 |
| 7 | Garaż | 17.3 m2 |
| 8 | Schody | 2.2 m2 |
| Pomieszczenie | Powierzchnia | |
| 1 | Korytarz | 6.6 m2 |
| 2 | Pralnia | 4.0 m2 |
| 3 | Pokój 1 | 10.5 m2 |
| 4 | Pokój 2 | 10.7 m2 |
| 5 | Sypialnia | 10.0 m2 |
| 6 | Łazienka 1 | 3.3 m2 |
| 7 | Garderoba | 4.8 m2 |
| 8 | Łazienka 2 | 7.8 m2 |
| 9 | Schody | 4.5 m2 |
| 10 | Poddasze nieuż. | 5.6 m2 |
| Pomieszczenie | Powierzchnia | |
| 1 | Korytarz | 2.6 m2 |
| 2 | Fitness | 13.3 m2 |
| 3 | WC | 1.4 m2 |
| 4 | Garderoba/ Pom.tech. | 6.2 m2 |
| Nr.Numer | Typ | PtPiętro | Pok.Pokoje | Pow.Pow | OgródPow. działki | ExtraOgród | BudynekBudynek | DostępnośćDostępność | Cena | Plan | Wirtualny | |
|---|---|---|---|---|---|---|---|---|---|---|---|---|
| A | A | 0 | 5 | 159,90m2 | 169,80m2 | Ogród | 1 | Sprzedane |
NR:
Nr:
A
Pow:
Pow:
159,90m2
Extra:
Ogród
Sprzedane
--
|
|||
| B | B | 0 | 5 | 159,90m2 | 100,60m2 | Ogród | 1 | Rezerwacja | 1590000.00 zł |
NR:
Nr:
B
Pow:
Pow:
159,90m2
Extra:
Ogród
Rezerwacja
1 590 000.00 zł
9 943.71 zł/m2 |
||
| C | C | 0 | 5 | 155,00m2 | 171,60m2 | Ogród | 1 | Sprzedane |
NR:
Nr:
C
Pow:
Pow:
155,00m2
Extra:
Ogród
Sprzedane
--
|
Ostoja Development to rodzinna firma oraz zespół pasjonatów nieruchomości, którzy od 2016 roku tworzą nowoczesne i funkcjonalne miejsca do życia w aglomeracji warszawskiej. Nasz sukces opiera się na szerokim doświadczeniu oraz skupieniu na rozpoznawaniu i zaspokajaniu potrzeb klientów. Stawiamy na kompleksową realizację projektów, dbając o to, by każda inwestycja odpowiadała na Twoje oczekiwania pod względem komfortu, lokalizacji i jakości wykonania. Naszym celem jest budowanie przestrzeni, która będzie dla Ciebie źródłem dumy.

Zapraszamy do naszego biura w Concept Tower – biznesowym sercu Warszawy:
ul. Grzybowska 87,
00-844 Warszawa
NIP: 118-212-60-02,
REGON: 364801577
KRS: 0000625313
Miejsce inwestycji :



























